PROJEKT: Markt 3 – 5

Lage & Objekt

Das Geschäftshaus am Markt 3-5 liegt in bevorzugter Innenstadtlage mit guter Anbindung und einer breiten Zielgruppe auf der Sonnenseite des Marktplatzes.

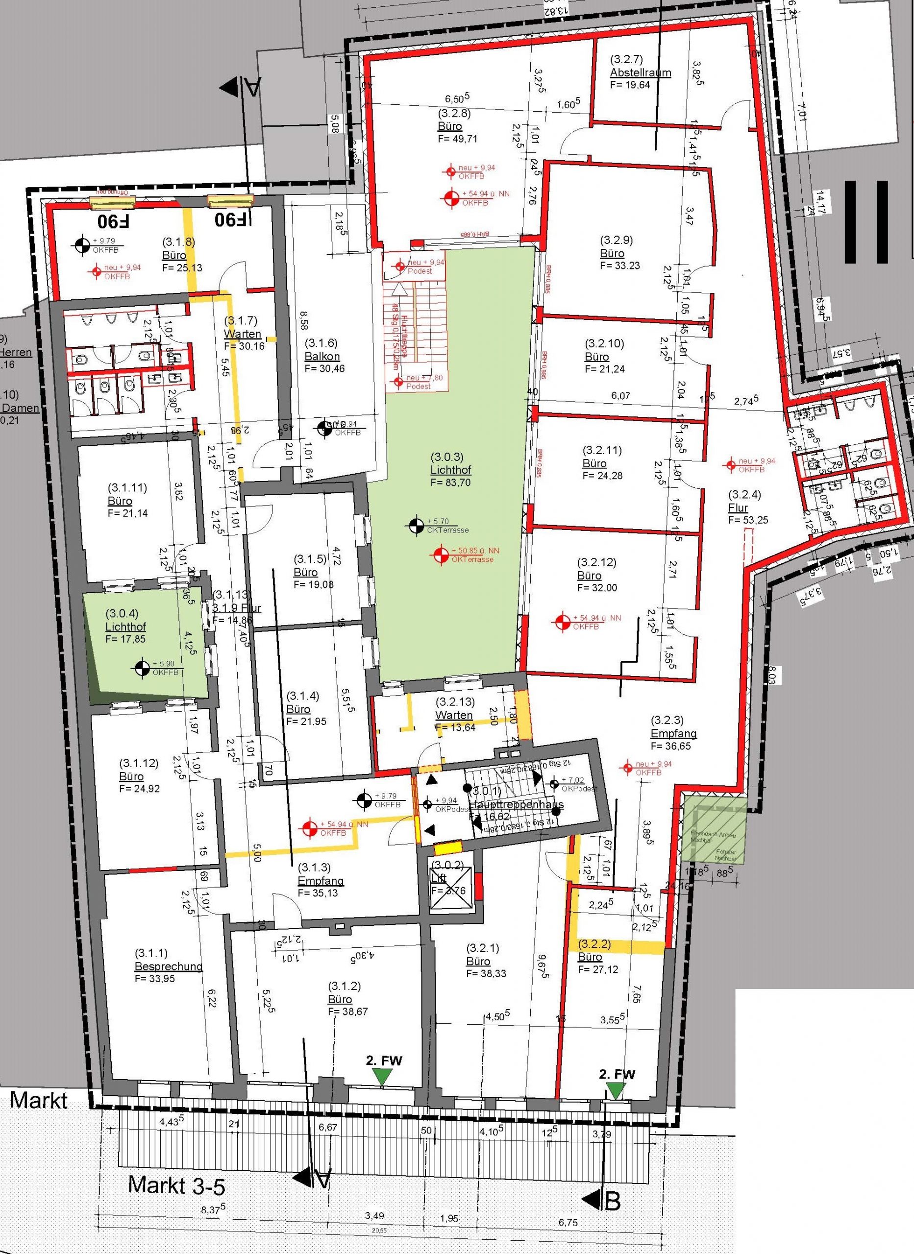
Das Geschäftshaus soll das gastronomische Konzept der Nachbarschaft aufgreifen und in den Obergeschossen wertige Praxisflächen anbieten. Die verschiedenen Lichthöfe und Dachterrassen bieten ein excellentes und repräsentatives Arbeitsumfeld. Die Fassade wird die alten Sandsteinelemente aufgreifen und den Eingangsbereich mit der alten Passage nach modernen Ansprüchen neu abbilden.

Das Objekt wird vollständig entkernt und das Raumkonzept neu festgelegt. Durch die Stützenkonstruktionen lässt sich eine vielseitige Raumaufteilung realisieren. Der rechte Gebäudeteil im Hinterhof wird abgerissen und bis zum 3. OG neu aufgebaut. Die Qualität des Ausbaus darf der Mieter mitbestimmen. Je nach Bedarf kann sogar im Erdgeschoss ein Conciergebereich eingerichtet werden. Aktuell ist im Erdgeschoss ein Behinderten- WC für das gesamte Haus geplant. Dies spart Platz in den einzelnen Mietflächen, ist aber auch änderbar.

Dem Eigentümer ist es gelungen, ein Gemeinschaftsprojekt einzuleiten, bei dem ein neues Parkhaus mit bis zu 200 Stellplätzen für dieses Ärztehaus errichtet werden kann. Der genaue Umfang des Bauvorhabens befindet sich aktuell in baurechtlicher Prüfung.

Im Objekt Markt 3 – 5 werden Büro- und Praxisflächen von bis zu 2.180m² und zwei gastronomische Flächen angeboten. Die erste gastronomische Fläche ist an einen Café- Betreiber ab 2021 vermietet. Die zweite gastronomische Fläche mit bis zu 600m² befindet sich aktuell in der Vermietung.

Anbindung1A Lage am Marktplatz in Minden
220 m zum Busbahnhof
600 m zum Gericht Minden
1,2 km zum Hauptbahnhof Minden
ParkplätzeFußläufiges Parkhaus in Projektierung mit bis zu 200 Parkplätzen
110m Parkhaus Hagemeyer; 391 Stellplätze Gesamt
140m Rathaustiefgarage; 102 Parkplätze Gesamt
400m Parkhaus Hellingstraße; 130 Stellplätze Gesamt
90 Stellplätze für 50€ Brutto fest anzumieten
550m Parkplatz Kanzlers Weide; 1.000 kostenfreie Parkplätze
Praxisfläche
Etagenfläche
Teilbar ab
Archivfläche
Ca. 2.180 m²
Ca. 600 m² bis 780 m²
Ca. 200m²
Ca. 400m² im UG
AusstattungBezugsfertig mit durchschnittlicher Ausstattung
Personenaufzug vorhanden
Terrassen und Balkone gem. Grundrissen vorhanden
Zentralheizungsanlage
Stufenfreie Erschließung, Optional: Zentral-Lüftung, Klimatisierung, Conciergebereich im EG,
besondere Ausstattungswünsche, Glaswände, Parkett, usw. Energieausweis ist mit Veränderung des Gebäudes beauftragt
MieteNach Laufzeit des Mietvertrages und der gewünschten
Ausstattungsqualität zu kalkulieren
BezugsfreiMitte 2021

Immobiliensuche

Geschäftszeiten

Montag – Donnerstag:

– 10.00 – 12.30 Uhr
– 13.30 – 18.00 Uhr

Freitag: 10.00 – 14.00 Uhr
und nach Vereinbarung